Santa Clarita Valley History In Pictures
> RANCHO CAMULOS
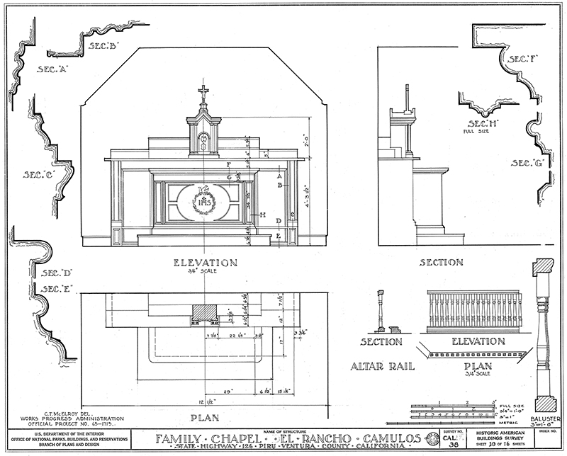
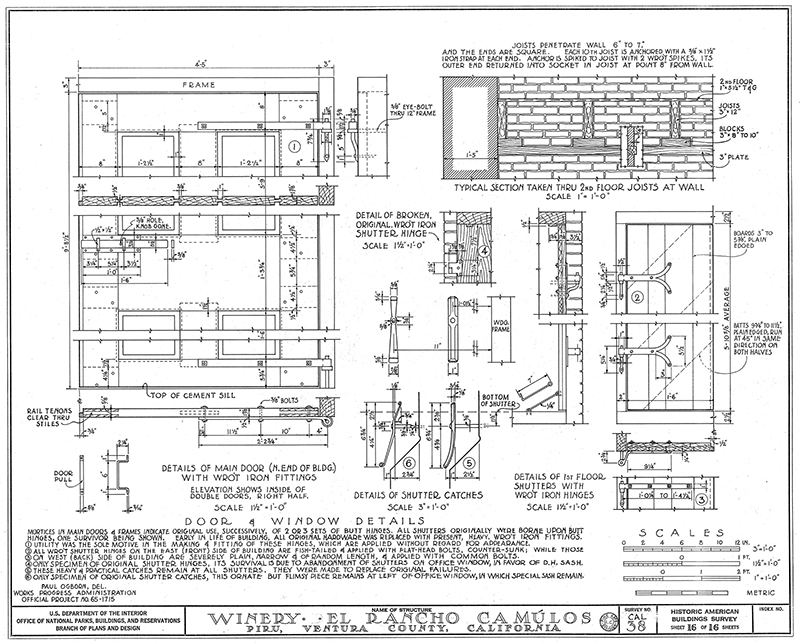
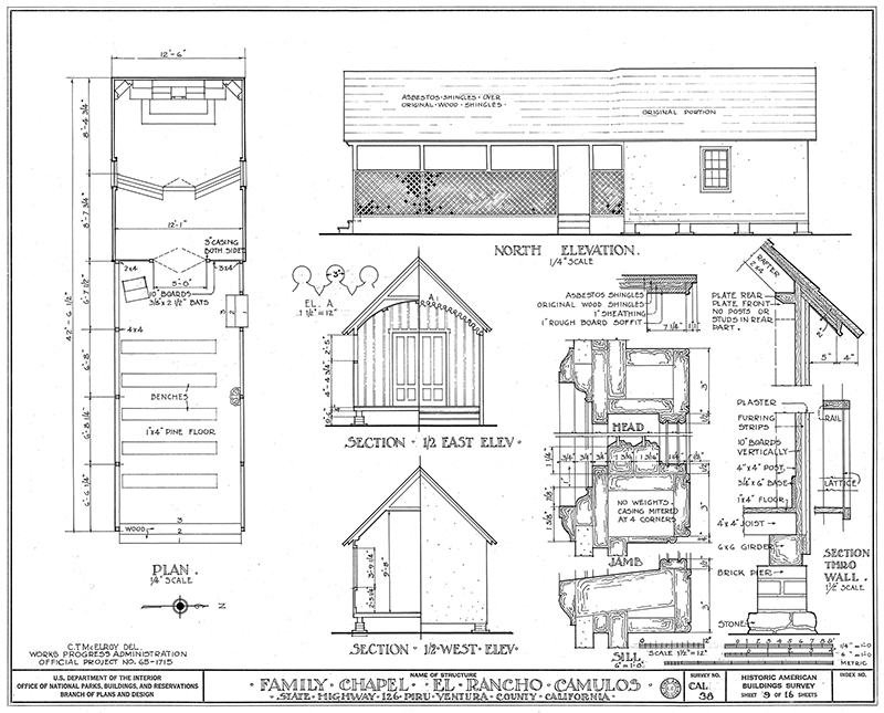
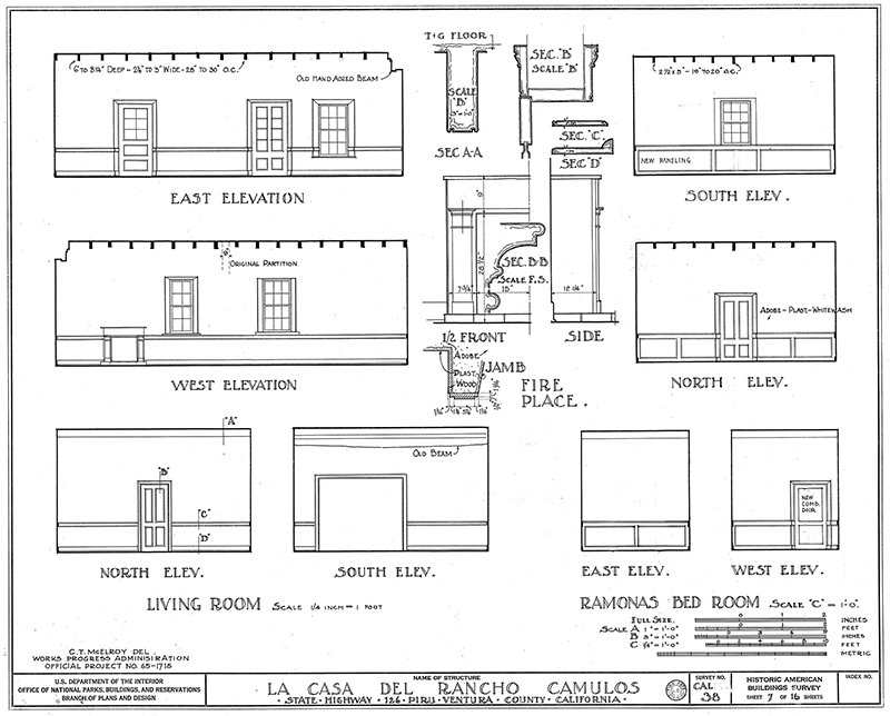
Rancho Camulos Historic American Buildings Survey
Piru, California



1934/1936 — Engineering drawings from the Historic American Buildings Survey of Rancho Camulos (as "Casa Del Rancho Camulos"), State Highway 12 (5164 East Telegraph road), Piru, Ventura County, CA.

HABS CA-38

Measured March 9-23, 1934; drawn July 1, 1936.

Diagrams (17) show dimensions of each historic building and the rooms and other architectural features of each building, as well as uses of each, as of the survey date.

For greatest utility, click the icon at upper right ("Open image in new window") for a higher-resolution version of each diagram.

See the photographs that accompany the survey here.


9600 dpi jpegs from digital images of HABS diagrams, surveyed 1934 drawn 1936 | Online images only, tiffs on file.
RUBEL FAMILY of RANCHO CAMULOS

SEE ALSO:
August Rübel, AFS


thumbnail

Oral Histories: Mary Rübel Burger, Jaime del Valle, Glenn S. Dumke 1958

thumbnail

Shirley Rübel Lorenz Oral History 2002

ALSO:
Oral History 2008

thumbnail

Prince Aaggie 1920s

thumbnail

Billiwhack Dairy Can

thumbnail

Shirley with Bulldog ~1928

thumbnail

5 Church Bells 1920s

thumbnail

Fountain at Cocina ~1920s-30s

thumbnail

Shirley & Nathalie Birthday ~1931

thumbnail

Ranch Photos 1935

thumbnail

Garden Parties 1936

thumbnail

Del Valle Stagecoach 1938

thumbnail

Property Appraisal 1939

thumbnail

August's Library n.d.

thumbnail

Rübel & Carey Kids ~1940

thumbnail

Foreman Charlie Rycroft

thumbnail

August Rubel at Desk

thumbnail

Johnny Dingtoes

thumbnail

August & Gerald 1942

thumbnail

Double Wedding 1950s

thumbnail

Peter Rubel 1935-1957

thumbnail

Grave Marker, Baby August ("Little Boy") 2013

RETURN TO TOP ]   RETURN TO MAIN INDEX ]   PHOTO CREDITS ]   BIBLIOGRAPHY ]   BOOKS FOR SALE ]
SCVHistory.com is another service of SCVTV, a 501c3 Nonprofit • Site contents ©SCVTV
The site owner makes no assertions as to ownership of any original copyrights to digitized images. However, these images are intended for Personal or Research use only. Any other kind of use, including but not limited to commercial or scholarly publication in any medium or format, public exhibition, or use online or in a web site, may be subject to additional restrictions including but not limited to the copyrights held by parties other than the site owner. USERS ARE SOLELY RESPONSIBLE for determining the existence of such rights and for obtaining any permissions and/or paying associated fees necessary for the proposed use.